Oct 2, 2025
Joint venture set to break ground on apartments next to Altamonte Springs SunRail station
GrowthSpotter
A joint venture between Catalyst Development Partners and Muirfield Investment Partners just announced that they plan to break ground this fall on an apartment complex across the street from the Altamonte Springs SunRail station.
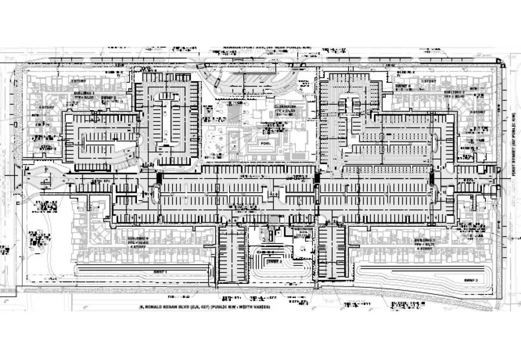
The garden-style, 332-unit apartment community is expected to open in early 2027 at 962 1st. St. The complex will consist of four 4-story buildings, each of which will be built on a separate corner of the rectangular property, and there will be an amenity area with a clubhouse and a pool in the center of the community.
There will be a mix of studio, one-, two-, and three-bedroom apartments, with interior finishes such as walk-in showers, granite counters, oversized islands, stainless steel appliances, and wood-inspired flooring.
The apartment community will consist of four buildings and a central amenity area with a pool and clubhouse. (Site plan by England-Thims and Miller)
Catalyst Development Partners, while based in Atlanta, has a second office in Jacksonville Beach and builds most of its properties in Florida, with a sizable list of past and present projects in Central Florida.
The project was equity financed through a joint venture with CP Capital, and Trustmark Bank provided $55.315 million in construction financing for the project. According to public records, an entity associated with Catalyst Development Partners closed on the roughly 13-acre property earlier this month for $8.3 million.
Muirfield Investment Partners originally filed plans for a multifamily project on the site in 2022, and later submitted a site plan before receiving city approval for the development.
“Muirfield is proud to have originated and advanced this project from its earliest stages, and we are deeply grateful to the City of Altamonte Springs for their unwavering support throughout the entitlement process. Their commitment to thoughtful growth made this vision possible. We are equally excited to partner with Catalyst Development Partners to bring this community to life, marking the next chapter of a project that will benefit Altamonte Springs for years to come,” Steve Colamarino, Partner at Muirfield Development, said in a press release.
The apartments will be located across the street from the Altamonte Springs SunRail station. (Seminole County Property Appraiser)
“Given the challenging conditions facing the multifamily industry over the last few years, we couldn’t be more pleased to launch this project. Strong market fundamentals, an outstanding location, great product design, strategic capital partnership, and the support of local government all created tremendous momentum to bring this project to life,” said Dave Greenberg, VP of Investments at Catalyst Development Partners.
Additionally, Madison Capital Group acted as an exclusive advisor representing Muirfield Development in arranging the co-development venture with Catalyst Development Partners, and England-Thims & Miller, Inc. (ETM) is the project engineer. HPA Design Group has been engaged for Interior Design Services.
CraneRIDES is Altamonte Spring’s autonomous vehicle program. (Photo from City of Altamonte Springs)
The apartments will be designed to have direct access to CraneRIDES, the city’s autonomous vehicle program. (Photo from City of Altamonte Springs)
The project’s impending groundbreaking is also a milestone for the City of Altamonte Springs’ goal of creating a mixed-use district around the SunRail station.
“The project is really important to the city,” City Manager Frank Martz told GrowthSpotter. “It is a tremendous piece of property that is inside of the city’s East Town Center, that is intended to be a very transit-friendly location.”
Residents of the future apartment community will be able to quickly walk to the SunRail station and will also have easy access to CraneRIDES, the city’s autonomous vehicle program.
“The project is very significant because they have designed the project, or at least the portion of the project, where its residents can get on and off of CraneRIDES so that they can get to work at the AdventHealth Regional Hospital or to work or shop at the Altamonte Mall, or get to be at the events programs at Cranes Roost,” Martz said.
